서울시, 중앙·공중 정원 도입한 도심형 주택모델

라펜트l기사입력2009-05-20

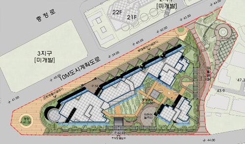
충정로와 서소문로 사이 역세권 지역에 중앙 정원과 공중 정원을 도입한 10~17층, 165세대 규모의 새로운 주택모델이 탄생할 전망이다.

중앙 정원과 공중 정원을 적용한 환경친환적인 도심형 주택
서울시(시장 오세훈)는 지난 2007년 9월 관할구청장으로부터 정비계획 승인 및 구역지정 요청이 있던 서대문구 충정로3가 281-18번지 일대 충정로 제1주택재개발 정비계획을 2년여의 산고 끝에 확정하고 그 지역을 5월 21일 정비구역으로 지정고시할 예정이라고 밝혔다.

바람직한 도심형 주택모델 개발을 위한 지속적인 노력 강조
본 건축계획의 세부적인 특징을 살펴보면 ▲조형울타리의 높이를 낮추어 보행자의 시각적 개방감을 확보하였고, ▲지붕을 보다 심플하게 디자인하여 아파트 전체의 이미지와 어울리도록 하였으며, ▲공공보행 통로를 주변지역 보행동선과 맞추는 등 주변지역을 배려한 세심한 계획임을 알 수 있다.

■ 배치도


■ 조감도


서울시에서는 충정로 제1구역과 같은 도심지에 어울리는 도심형 주택모델 개발 노력을 지속적으로 추진할 것이라고 강조하였다.
또한 세부적인 디자인 계획은 앞으로 있을 건축심의를 통하여 보다 더 완성미를 기하도록 조치할 예정이며, 본 구역이 정비구역으로 지정고시됨에 따라 주민들은 조합을 결성하여 본격적인 사업추진 나서게 될 것으로 예상되며 약 3년 내지 4년 후에는 충정로 역세권에 명품 주택이 그 모습을 드러낼 것으로 보인다.

출처_서울시

손미란  ·  라펜트
다른기사 보기
s-mr@hanmail.net
관련키워드l

네티즌 공감 (0)

의견쓰기

가장많이본 사진

인포21C 제휴정보

  • 입찰
  • 낙찰
  • 특별혜택